муфени тръби
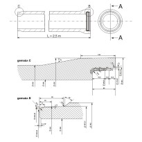
тръби стоманобетонни муфени канализационни с интегриран уплътнител, L=2,5 m – нисконапорни БДС EN 1916 за уплътнители EN 681-1
| номенкл. № |
наименование |
дължина |
диаметър |
тегло |
клас |
налягане |
| m. /бр. |
m. /бр. |
т. /бр. |
P разр. |
| 10100100 |
ТСБМК Ф 300 х 2500 , d=75 |
2.50 |
0.30 |
0.592 |
1 |
48.00 |
| 10100300 |
ТСБМК Ф 500 х 2500 , d=80 |
2.50 |
0.50 |
0.930 |
1 |
45.00 |
| 10100200 |
ТСБМК Ф 400 х 2500 , d=80 |
2.50 |
0.40 |
0.803 |
1 |
53.00 |
| 10100400 |
ТСБМК Ф 600 х 2500 , d=85 |
2.50 |
0.60 |
1.318 |
1 |
45.00 |
| 10100500 |
ТСБМК Ф 800 х 2500 , d=94 |
2.50 |
0.80 |
2.006 |
1 |
51.00 |
| 10100600 |
ТСБМК Ф 1000 х 2500 , d=124 с монтажни анкери |
2.50 |
1.00 |
3.147 |
1 |
53.00 |
| 10100700 |
ТСБМК Ф 1200 х 2500 , d=139 с монтажни анкери |
2.50 |
1.20 |
4.308 |
1 |
51.00 |
Тръби стоманобетонни муфени канализационни с интегриран уплътнител L=2,5 m
1.Приложение:Предварително отляти \ТСБМК\ с интегриран гъвкав уплътнител са предназначени за изграждането на отводнителни и канализационни безнапорни и нисконапорни системи за пренос на канализационни, дъждовни и третирани промишлени отпадъчни води.
2.Проектиране:Използването и полагането на тръбите на всеки строеж се извършва по инвестиционен проект-предварително изготвен и утвърден в съответствие със съществуващия законов ред и при спазването на актуалните строителни и нормативни документи.
3.Монтаж:Тръбите се монтират в проектно положение на предварително направена пясъчна възглавница или излят подложен бетон В 15 като ъгълът,който се формира е от 90°-120º.Тръбите се втикват чрез плъзване.Областите, в които се намират уплътнителите се почистват преди сглобяването.Смазката за приплъзване се поставя върху този край на тръбата, в който няма поставен уплътнител т.е. върху бетона. Съединяването на тръбите започва от най–крайната,най-дълбоката част на тръбопрово да. Всяка тръба, особено първата трябва да е добре центрирана,а силата с която става плъзването трябва да бъде внимателно контролирана. Всяка следваща тръба ,която ще се плъзва в предната трябва да е повдигната и да виси свободно.
За да се предотврати повреждането на еластомерните уплътнители ,е необходимо да се използват специални уреди. Плъзването на тръбите чрез захващане с багер води до увреждането им. Разстоянието между крайните точки на две тръби трябва да е поне 5 мм. Тръбите за отпадни води в общия случай се свързват по права линия между две шахтови съоръжения. Промяната на посоката ,ако е необходима се извършва от шахтовите съоръжения. Възможно е да се правят извивки по трасето, чрез предварително отлети закривени изделия. Проектното положение на тръбите ,се контролира геодезически.
4.Експлоатация и поддръжка:Проектния експлоатационен срок на тръбите произведени по тоя стандарт е много висок .През експлоатационния период специални грижи за поддържането им не са необходими.
тръби бетонни муфени канализационни с интегриран уплътнител, L=2,5 m - безнапорни БДС EN 1916 за уплътнители EN 681-1
| номенкл. № |
наименование |
дължина |
диаметър |
тегло |
налягане |
| m. /бр. |
m. /бр. |
т. /бр. |
P разр. |
| 11100300 |
ТБМК Ф 500 х 2500 , d=80 |
2.50 |
0.50 |
0.880 |
40.00 |
| 11100200 |
ТБМК Ф 400 х 2500 , d=80 |
2.50 |
0.40 |
0.755 |
43.00 |
| 11100100 |
ТБМК Ф 300 х 2500 , d=75 |
2.50 |
0.30 |
0.548 |
40.00 |
| 11100400 |
ТБМК Ф 600 х 2500 , d=85 |
2.50 |
0.60 |
1.242 |
40.00 |
| 11100500 |
ТБМК Ф 800 х 2500 , d=94 |
2.50 |
0.80 |
1.860 |
41.00 |
| 11100600 |
ТБМК Ф1000 х 2500 , d=124 с монтажни анкери |
2.50 |
1.00 |
3.099 |
48.00 |
| 11100700 |
ТБМК Ф1200 х 2500 , d=139 с монтажни анкери |
2.50 |
1.20 |
4.131 |
48.00 |
Тръби бетонни муфени канализационни с интегриран уплътнител L=2,5 m 1.Приложение:Предварително отляти ''ТБМК'' с интегриран гъвкав уплътнител са предназначени за изграждането на отводнителни и канализационни безнапорни и нисконапорни системи за пренос на канализационни, дъждовни и третирани промиш лени отпадъчни води.
2.Проектиране:Използването и полагането на тръбите на всеки строеж се извършва по инвестиционен проект-предварително изготвен и утвърден всъответствие със съществуващия законов ред и при спазването на актуалните строителни и нормативни документи.
3.Монтаж:Тръбите се монтират в проектно положение на предварително направена пясъчна възглавница или излят подложен бетон В 15 като ъгълът, който се формира е от 90°-120º.Тръбите се втикват чрез плъзване.Областите, в които се намират уплътнителите се почистват преди сглобяването.Смазката за приплъзване се поставя върху този край на тръбата, в който няма поставен уплътнител т.е. върху бетона. Съединяването на тръбите започва от най–крайната, най-дълбоката част на тръбопровода. Всяка тръба, особено първата трябва да е добре центрирана, а силата с която става плъзването трябва да бъде внимателно контролирана. Всяка следваща тръба ,която ще се плъзва в предната трябва да е повдигната и да виси свободно.
За да се предотврати повреждането на еластомерните уплътнители ,е необходимо да се използват специални уреди. Плъзването на тръбите чрез захващане с багер води до увреждането им. Разстоянието между крайните точки на две тръби трябва да е поне 5мм. Тръбите за отпадни води в общия случай се свързват по права линия между две шахтови съоръжения. Промяната на посоката ,ако е необходима се извършва от шахтовите съоръжения. Възможно е да се правят извивки по трасето, чрез предварително отлети закривени изделия. Проектното положение на тръбите ,се контролира геодезически.
4.Експлоатация и поддръжка:Проектния експлоатационен срок на тръбите произведени по тоя стандарт е много висок .През експлоатационния период специални грижи за поддържането им не са необходими.
тръби стоманобетонни муфени двойно армирани за пътни и жп водостоци БДС EN 1916
| номенкл. № |
наименование |
дължина |
диаметър |
тегло |
налягане |
| m. /бр. |
m. /бр. |
т. /бр. |
P разр. |
дренажни тръби
фалцови тръби
тръби стоманобетонни, двойно армирани фалцови за канализации, жп и пътни водостоци

| номенкл. № |
наименование |
дължина |
диаметър |
тегло |
налягане |
| m. /бр. |
m. /бр. |
т. /бр. |
P разр. |
| 11041000 |
ТСБФПЖПВ Т 150 х 12 х 200 |
2.00 |
1.50 |
3.098 |
95.00 |
| 11043000 |
ТСБMПЖПВ Т 50 х 8 х 250 |
2.50 |
0.50 |
0.981 |
55.00 |
| 11045000 |
ТСБMПЖПВ Т 80 х 9,4 х 250 |
2.50 |
0.80 |
2.072 |
71.00 |
| 11047000 |
ТСБMПЖПВ Т 100 х 12,4 х 250 |
2.50 |
1.00 |
3.481 |
78.00 |
| 11048000 |
ТСБMПЖПВ Т 40 х 8 х 250 |
2.50 |
0.40 |
0.803 |
51.00 |
| 11049000 |
ТСБMПЖПВ Т 60 х 8.5 х 250 |
2.50 |
0.60 |
1.318 |
68.00 |
| 11050000 |
ТСБMПЖПВ Т 120 х 13.9 х 250 |
2.50 |
1.20 |
4.308 |
95.00 |
| 11010400АА |
ТСБФПЖПВ Т 40 х 4,5 х 100 |
1.00 |
0.40 |
0.206 |
51.00 |
| 11010500АА |
ТСБФПЖПВ Т 50 х 5,5 х 100 |
1.00 |
0.50 |
0.300 |
55.00 |
| 11010600АА |
ТСБФПЖПВ Т 60 х 6,5 х 100 |
1.00 |
0.60 |
0.427 |
68.00 |
| 11010700АА |
ТСБФПЖПВ Т 80 х 8,5 х 100 |
1.00 |
0.80 |
0.614 |
71.00 |
| 11010800АА |
ТСБФПЖПВ Т 100 х 9,5 х 100 |
1.00 |
1.00 |
0.886 |
78.00 |
| 10100800АА |
ТСБФПЖПВ Т 140 х 16 х 250 |
2.50 |
1.40 |
5.279 |
95.00 |
| 11010900АА |
ТСБФПЖПВ Т 150 х 9,5 х 100 |
1.00 |
1.50 |
1.446 |
95.00 |
| 10100900АА |
ТСБФПЖПВ Т 160 х 17 х 250 |
2.50 |
1.60 |
6.220 |
95.00 |
| 10101000АА |
ТСБФПЖПВ Т 180 х 20 х 250 |
2.50 |
1.80 |
7.277 |
95.00 |
| 10101100АА |
ТСБФПЖПВ Т 200 х 20 х 250 |
2.50 |
2.00 |
9.059 |
95.00 |
ТРЪБИ СТОМАНОБЕТОННИ, ДВОЙНО АРМИРАНИ се използват за изграждане на канализационни тръбопроводи, пътни и ЖП водостоци.
1.Указания за проектиране
Прилагането на произвежданите тръби на всеки конкретен строеж се извършва с разработен и утвърден по съответния законов ред инвестиционен проект при спазване на техническите строителни норми и изискванията на БДС EN 1916. Минималното насипно покритие над тръбите при пътни водостоци е 600 mm ,мерено от горната повърхност на тръбата до нивото на настилката. При дебелина на насипното покритие до 1500 mm , тръбите се полагат върху пясъчна подложка. За по-големи дебелини да се предвижда профилирана подложка от подложен бетон с ъгъл на обхвата 120 0 и минимална дебелина 20 cm от бетон с клас В 15. При това дебелината на насипа не трябва да е по-голям от 3,0 m.
2.Указания за монтаж
Двойно армираните стоманобетонни тръби се монтират в проектно положение върху предварително направена пясъчна възглавница или излят подложен бетон с минимал на дебелина 20 cm. Товаро-разтоварни и монтажни работи се извършват с помощта на кран с товароподемност и обхват, определени за конкретните условия при G тръба =3,0 t. Монтажът се извършва от двама монтажници под ръководството на отговорен бригадир. Квалификацията на персонала е ІІ – ра степен монтажници.Проектното положение на тръбите се контролира геодезически. При отсъствие на монтажни анкери трябва да имат гумени подложки за запазване от обрушване ръбовете на челата на тръбите.
3.Указания за експлоатация и поддържане
Двойно армираните стоманобетонни тръби имат дълъг експлоатационен срок и не изискват специални грижи за поддържането им.
тръби бетонни , фалцови - ТФ без пета и ТФП с пета, L=1 m - безнапорни БДС 17004; БДС 895
| номенкл. № |
наименование |
дължина |
диаметър |
тегло |
налягане |
| m. /бр. |
m. /бр. |
т. /бр. |
P разр. |
| 11010100 |
ТБФК Ф 150 х 1000 , d=30 |
1.00 |
0.15 |
0.041 |
25.00 |
| 11010200 |
ТБФПК Ф 200 х 1000 , d=30 |
1.00 |
0.20 |
0.062 |
27.00 |
| 11010300 |
ТБФК Ф 300 х 1000 , d=35 |
1.00 |
0.30 |
0.144 |
31.00 |
| 11011300 |
ТБФПК Ф 300 х 1000 , d=35 |
1.00 |
0.30 |
0.155 |
31.00 |
| 11010400 |
ТБФПК Ф 400 х 1000 , d=45 |
1.00 |
0.40 |
0.196 |
32.00 |
| 11010500 |
ТБФПК Ф 500 х 1000 , d=55 |
1.00 |
0.50 |
0.269 |
34.00 |
| 11010600 |
ТБФПК Ф 600 х 1000 , d=65 |
1.00 |
0.60 |
0.412 |
37.00 |
| 11010700 |
ТБФК Ф 800 х 1000 , d=85 |
1.00 |
0.80 |
0.557 |
42.00 |
| 11010800 |
ТБФК Ф 1000 х 1000 , d=95 |
1.00 |
1.00 |
0.824 |
48.00 |
| 11010900 |
ТБФК ф 1500х1000, d=95 |
1.00 |
1.50 |
1.236 |
53.00 |
ТРЪБИ БЕТОННИ БЕЗНАПОРНИ, КРЪГЛИ, ФАЛЦОВИ С ПЕТА И БЕЗ ПЕТА са предназначени за строителство на подземни безнапорни канализации за гравитачно отвеждане на неагресивни към бетона подземни производствени и отпадъчни води.
1.Указания за проектиране
Прилагането на произвежданите тръби бетонни безнапорни, кръгли с пета и без пета, фалцови на всеки конкретен строеж се извършва с разработен и утвърден по съответния законов ред инвестиционен проект при спазване на техническите строителни норми.
2.Указания за монтаж
Всички видове тръби бетонни безнапорни се монтират в проектно положение върху предварително направена пясъчна възглавница или излят подложен бетон с минимална дебелина 10 сm. Монтажът се извършва ръчно от двама монтажници. Квалификацията на персонала е ІІ – ра степен монтажници.
3.Указания за експлоатация и транспорт
Тръби бетонни безнапорни имат дълъг проектен експлоатационен срок Транспортират се с всякакъв вид транспортни средства.При транспортиране те трябва, така да се нареждат, че да се избягват ударите помежду им, или в каросерията на превозното средство. Да се пазят от удар при товарене, разтоварване и складиране.
4.Указания за поддръжка
Не изискват специални грижи за поддържане.
тръби бетонни фалцови канализационни, L=2,5 m – безнапорни /за шахти/ БДС EN 1917
| номенкл. № |
наименование |
дължина |
диаметър |
тегло |
налягане |
| m. /бр. |
m. /бр. |
т. /бр. |
P разр. |
| 11100900 |
ТБФК ф1600 х 2500 с монтажни анкери, d=170 |
2.50 |
1.60 |
5.890 |
32.00 |
| 11100800 |
ТБФК ф1400 х 2500 с монтажни анкери, d=160 |
2.50 |
1.40 |
4.963 |
32.00 |
| 11101000 |
ТБФК ф1800 х 2500 с монтажни анкери, d=200 |
2.50 |
1.80 |
7.028 |
39.00 |
| 11101100 |
ТБФК ф2000 х 2500 с монтажни анкери, d=200 |
2.50 |
2.00 |
8.679 |
35.00 |
тръби стоманобетонни фалцови канализационни, L=2,5 m - нисконапорни БДС EN 1916 за уплътнители EN 681-1
| номенкл. № |
наименование |
дължина |
диаметър |
тегло |
клас |
налягане |
| m. /бр. |
m. /бр. |
т. /бр. |
P разр. |
| 10100800 |
ТСБФК Ф 1400 х 2500 , d=160 с монтажни анкери |
2.50 |
1.40 |
5.279 |
1 |
75.00 |
| 10100900 |
ТСБФК Ф 1600 х 2500 , d=170 с монтажни анкери |
2.50 |
1.60 |
6.220 |
1 |
71.00 |
| 10101000 |
ТСБФК ф 1800 х 2500 с монтажни анкери, d=200 |
2.50 |
1.80 |
7.257 |
1 |
72.00 |
| 10111100 |
ТСБФК Ф 2000 х 2500 d=200 с монтажни анкери |
2.50 |
2.00 |
9.059 |
1 |
80.00 |
Тръби стоманобетонни фалцови канализационни L=2,5 m - нисконапорни 1.Приложение:Предварително отляти ''ТСБФК'' с интегриран гъвкав уплътнител са предназначени за изграждането на отводнителни и канализационни безнапорни и нисконапорни системи за пренос на канализационни, дъждовни и третирани промишлени отпадъчни води.
2.Проектиране:Използването и полагането на тръбите на всеки строеж се извършва по инвестиционен проект-предварително изготвен и утвърден всъответствие със съществуващия законов ред и при спазването на актуалните строителни и нормативни документи.
3.Монтаж:Тръбите се монтират в проектно положение на предварително направена пясъчна възглавница или излят подложен бетон В 15 като ъгълът,който се формира е от 90°-120º.Тръбите се втикват чрез плъзване.Областите,в които се намират уп лътнителите се почистват преди сглобяването.Смазката за приплъзване се поставя върху този край на тръбата, в който няма поставен уплътнител т.е. върху бетона. Съединяването на тръбите започва от най–крайната,най-дълбоката част на тръбопрово да. Всяка тръба, особено първата трябва да е добре центрирана,а силата с която става плъзването трябва да бъде внимателно контролирана. Всяка следваща тръба ,която ще се плъзва в предната трябва да е повдигната и да виси свободно.За да се предотврати повреждането на еластомерните уплътнители ,е необходимо да се използват специални уреди. Плъзването на тръбите чрез захващане с багер води до увреждането им. Разстоянието между крайните точки на две тръби трябва да е поне 5мм. Тръбите за отпадни води в общия случай се свързват по права линия между две шахтови съоръжения. Промяната на посоката ,ако е необходима се извършва от шахтовите съоръжения. Възможно е да се правят извивки по трасето, чрез предварително отлети закривени изделия. Проектното положение на тръбите ,се контролира геодезически.
уплътнители за стоманобетонни фалцови канализационни тръби, L=2,5 m – нисконапорни EN 681-1
| номенкл. № |
наименование |
диаметър |
| m. /бр. |
| 10130800 |
Уплътнител Ф 1400 |
1.40 |
| 10130900 |
Уплътнител Ф 1600 |
1.60 |
| 10131000 |
Уплътнител Ф 1800 |
1.80 |
| 10131100 |
Уплътнител Ф 2000 |
2.00 |
тръби стоманобетонни, фалцови - ТФ без пета и ТФП с пета L=1 m/2m - безнапорни БДС 17343;БДС 895
| номенкл. № |
наименование |
дължина |
диаметър |
тегло |
налягане |
| m. /бр. |
m. /бр. |
т. /бр. |
P разр. |
| 11010700А |
ТСБФК ф800х1000 - ед.армирани |
1.00 |
0.80 |
0.588 |
45.00 |
| 11010700АА |
ТСБФК ф800х1000 - дв.армирани |
1.00 |
0.80 |
0.630 |
68.00 |
| 11010800А |
ТСБФК ф1000х1000 ед.армирани |
1.00 |
1.00 |
0.859 |
53.00 |
| 11010800АА |
ТСБФК ф1000х1000 дв.армирани |
1.00 |
1.00 |
0.911 |
73.00 |
| 11010900А |
ТСБФК ф1500х1000 ед.армирани |
1.00 |
1.50 |
1.334 |
70.00 |
| 11010900АА |
ТСБФК ф1500х1000 дв.армирани |
1.00 |
1.50 |
1.435 |
95.00 |
| 11011000А |
ТСБФК ф1500х2000 ед.армирани |
2.00 |
1.50 |
2.875 |
70.00 |
| 11011000АА |
ТСБФК ф1500х2000 дв.армирани |
2.00 |
1.50 |
3.075 |
95.00 |